BEZVA-DUM.cz

Prodej domu 1 348 000
Hledáte ke koupi dům? Nebo chcete nabídnout svoji nemovitost k prodeji? Pak využijte našich služeb. Inzerovat zdarma mohou jak realitní kanceláře, tak i fyzické osoby. Aktuálně je v databázi realit.
HLEDAT V DATABÁZI NEMOVITOSTÍ
Rodinné domyNájemní domyVenkovská staveníChaty a chalupyPozemky

 

 
Kategorie:
Kraj:
Lokalita:
Cena:od  do
 
 

Prodej domu 1 348 000

Lokalita: okres Liberec, Liberecký kraj,Středočeský kraj,pardubycký kraj,kralovohradecký kraj

Cena: S DPH

Popis:

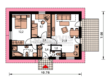
Sprostředkujeme vám výstavbu domu dle vašeho přání a představ ,spolupracujeme s projekčními partnery Gservis a PROWI,.domy jsou od 1 348 000.Dale vám zajistíme pozemek v dané oblasti kterou si vyberete,nebo na vašem pozemku postavíme ,vyřídíme povolení,inřenýrské sítě,pomužeme vyřídit finnancování,TĚŠÍ SE NA VÁS NÁŠ KOLEKTÝV STAVEBNÍ SPOLEČNNOSTI UNIBUILD S.R.O.

Přímý kontakt na brokera: 774716696



JN Real

U Balvanu 2023/49
tel.: 774726696
[email protected]

Zapsáno: 28.07.2011 7:27:43