BEZVA-DUM.cz

Prodej stavebních pozemku
Hledáte ke koupi dům? Nebo chcete nabídnout svoji nemovitost k prodeji? Pak využijte našich služeb. Inzerovat zdarma mohou jak realitní kanceláře, tak i fyzické osoby. Aktuálně je v databázi realit.
HLEDAT V DATABÁZI NEMOVITOSTÍ
Rodinné domyNájemní domyVenkovská staveníChaty a chalupyPozemky

 

 
Kategorie:
Kraj:
Lokalita:
Cena:od  do
 
 

Prodej stavebních pozemku

Lokalita: okres Kladno, Unhošť-Nouzov

Cena: za m2

Popis:

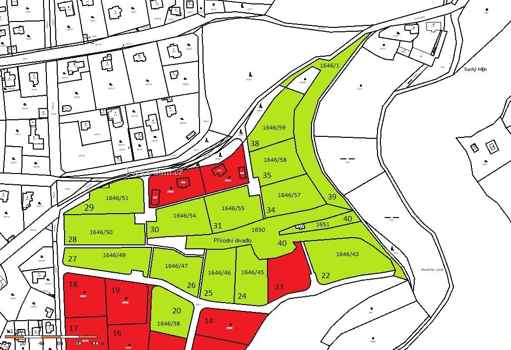
Prodám stavební pozemki
č.p. 1646/24 o výměre 2088 m2
č.p. 1646/37 o výměre 2070 m2
č.p. 1646/59 o výměre 2218 m2
č.p. 1646/58 o výměre 2083 m2
č.p. 1646/57 o výměre 2213 m2
č.p. 1646/55 o výměre 2287 m2
č.p. 1646/54 o výměre 2225 m2
č.p.1646/51 o výměre 2215 m2
č.p. 1646/50 o výměre 2810 m2
č.p. 1646/49 o výměre 2315 m2
č.p. 1646/47 o výměre 2010m2
č.p. 1646/46 o výměre 2015m2
č.p. 1646/45 o výměre 2045m2
č.p. 1646/43 o výměre 3351 m2
č.p. 1646/38 o výměre 2003m2
č.p. 1646/36 o výměre 2025 m2
č.p. 1646/25 o výměre 2120 m2
č.p. 1641/3 o výměre 2000 m2
č.p. 1646/29 o výměre 1885 m2

v klidné části obce Unhošť-Nouzov. Lokalita se vyznačuje bydlením rezidenčního typu, s velkými domy postavenými na rozlehlých parcelách. Lokalita je z jižní a východní strany obklopena smíšeným lesním porostem, který náleží k rozsáhlé ploše křivoklátských lesů. Nouzov, leží na okraji Křivoklátských lesů při silnici spojující Kladno s Berounem, 15 minut jízdy autem od okraje Prahy a 20 minut od nejbližší stanice metra Zličin a Hradčanská ,5 minut jízdy autem od kompletní občanské vybavenosti v nedaleké Unhošti (6km). Veškerá občanská vybavenost je v blízké Unhošti: Pošta, Lékárna, Mateřská škola, Restauraci, Knihovna, Muzeum. OC Metropole vedle metra Zličin.


Ihomes real estate

Jungmannova 36/31
tel.: 602398888
[email protected]

Zapsáno: 09.10.2018 15:08:49