BEZVA-DUM.cz

Prodej stavebních pozemků
Hledáte ke koupi dům? Nebo chcete nabídnout svoji nemovitost k prodeji? Pak využijte našich služeb. Inzerovat zdarma mohou jak realitní kanceláře, tak i fyzické osoby. Aktuálně je v databázi realit.
HLEDAT V DATABÁZI NEMOVITOSTÍ
Rodinné domyNájemní domyVenkovská staveníChaty a chalupyPozemky

 

 
Kategorie:
Kraj:
Lokalita:
Cena:od  do
 
 

Prodej stavebních pozemků

Lokalita: okres Kolín, Pečky-Dobřichov

Cena: 343 170 CZK

Popis:

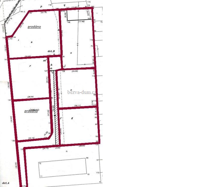
Nabízíme k prodeji stavební pozemky, výměřy od 803 m2, obec Pečky – Dobřichov. Pozemky jsou vhodné pro výstavbu RD. Klidná lokalita. Veškeré IS v blízkosti pozemku. Příjezdová cesta. Obec má centrální zásobování vody a centr. kanalizace kam je možné se připojit, plyn cca 30m a kanalizace cca 50m. el. rozvodna na hranici pozemku.
Ceny pozemků od 343 170,-Kč.

Přímý kontakt na brokera: 777449401


Jiri Tomášek

Na Zvonařce 1A Praha 2 12000
tel.: 777449401
[email protected]

Zapsáno: 01.11.2012 13:57:24