BEZVA-DUM.cz

Prodej stavebních pozemků ve Štěpánově
Hledáte ke koupi dům? Nebo chcete nabídnout svoji nemovitost k prodeji? Pak využijte našich služeb. Inzerovat zdarma mohou jak realitní kanceláře, tak i fyzické osoby. Aktuálně je v databázi 921 realit.
HLEDAT V DATABÁZI NEMOVITOSTÍ
Rodinné domyNájemní domyVenkovská staveníChaty a chalupyPozemky

 

 
Kategorie:
Kraj:
Lokalita:
Cena:od  do
 
 

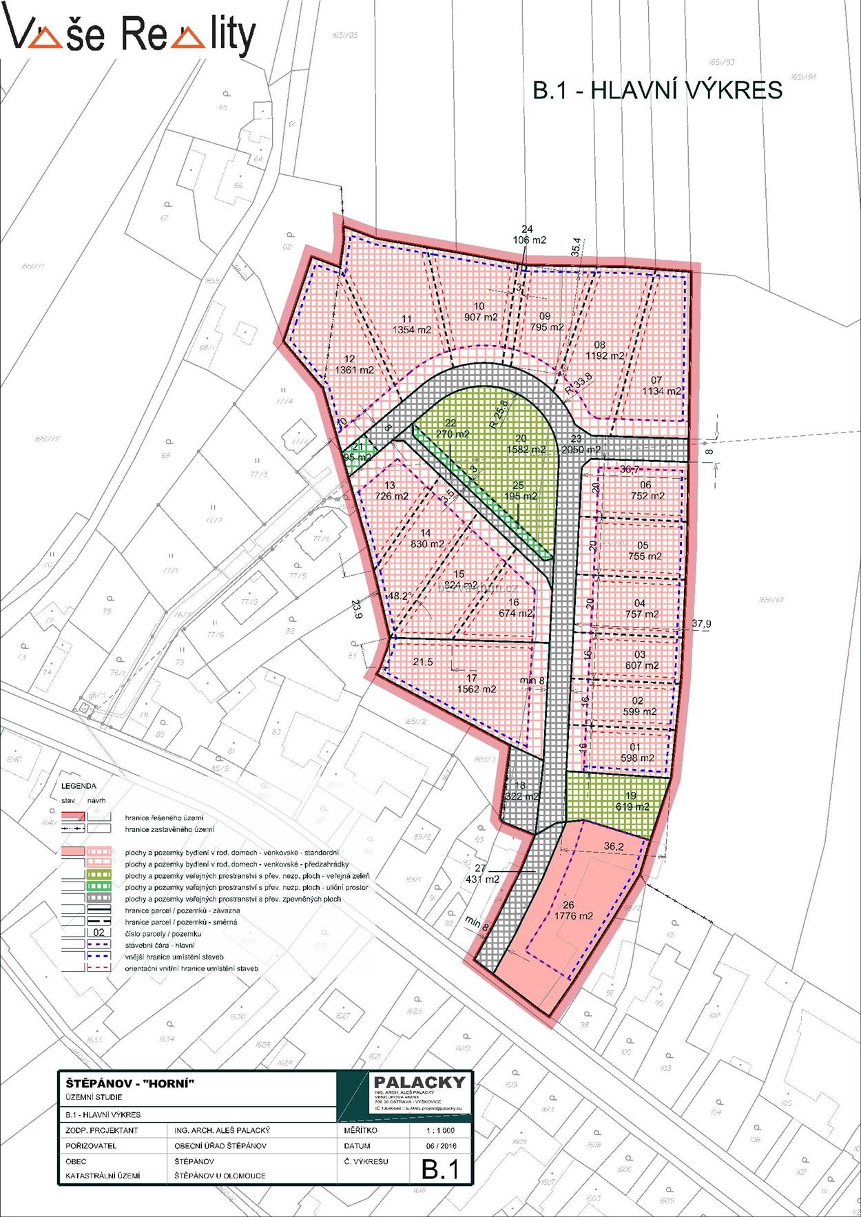
Prodej stavebních pozemků ve Štěpánově

Lokalita: okres Olomouc, Štěpánov

Cena: 1500

Popis:

Prodej 16 ti stavebních pozemků o rozměrech od 500- 2000m2 DLE PŘÁNÍ ZÁKAZNÍKA v Štěpánově u OLOMOUCE. (10km od Olomouce)
Jedná se o velmi pěkné místo v přírodě, klid, se všemi inženýrskými sítěmi. 4 pozemky jsou již zarezervovány.
U prvních 6 pozemků je cena 1500kč/m2 vč. veškerých služeb RK po slevě 10%. Proúvěrování zajistíme.


Vaše Reality

Dobrovského 23, Olomouc 779 00
tel.: 777 148 150
[email protected]

Zapsáno: 19.09.2016 12:22:57