BEZVA-DUM.cz

Rodinný dům Slatina
Hledáte ke koupi dům? Nebo chcete nabídnout svoji nemovitost k prodeji? Pak využijte našich služeb. Inzerovat zdarma mohou jak realitní kanceláře, tak i fyzické osoby. Aktuálně je v databázi realit.
HLEDAT V DATABÁZI NEMOVITOSTÍ
Rodinné domyNájemní domyVenkovská staveníChaty a chalupyPozemky

 

 
Kategorie:
Kraj:
Lokalita:
Cena:od  do
 
 

Rodinný dům Slatina

Lokalita: okres Brno-město, Brno, Slatina

Cena: CENA DOHODOU

Plocha pozemku: 428 m2

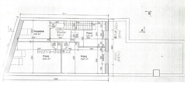
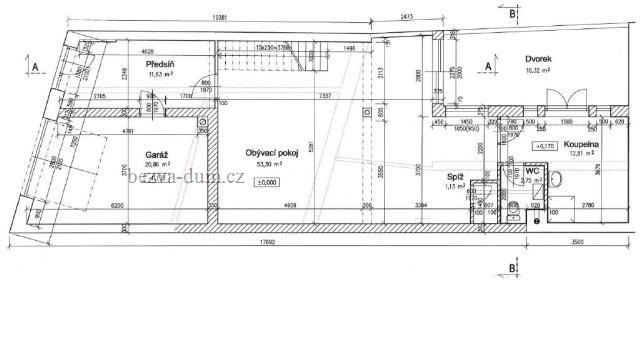
Zastavěná plocha: 124 m2

Užitná plocha: 163 m2

Obytná plocha: 292 m2

Popis:

Nabízíme k prodeji dům 4+kk s garáží (možno využít jako kancelář nebo obchod) se zahradou. Dům se nachází v městské části Brno-Slatina ulice Matlachova, dům je situován hlavním vchodem a garáží do ulice. Při vchodu do domu nalezneme rozlehlou předsíň, která navazuje na velice vzdušně a moderně řešený interiér obývacího pokoje s moderně řešenou kuchyní.V obývacím pokoji je krb, podlahové topení, nová kuchyňská linka se všemi spotřebiči a spížka. Tento prostor navazuje na zahradu, která je situovaná do vnitro bloku, dále je zde koupelna s pracím zázemím, toaletou a kombinovaným kotlem. V horním patře jsou tři pokoje + koupelna s rohovou vanou a toaletou. Dům byl v roce 2009 kompletně nově zrekonstruován, nutné pouze dodělat venkovní fasádu. Volný po domluvě, měsíční náklady cca 3 500,-Kč. Možnost financování - hypotékou, popř. stavebním spořením. Městská část Slatina patří díky svému vyspělému zázemí i dopravní dostupnosti k předním a velmi vyhledávaným lokalitám k bydlení.Naleznete zde mateřskou i základní školu, příjemné nákupní možnosti, restaurace a další místa k příjemnému společenskému vyžití.

Přímý kontakt na brokera: Jarmila Oujezdská


Jarmila Oujezdska

XXX
tel.: 739666079
[email protected]

Zapsáno: 26.08.2010 21:07:39